导语
在国家积极倡导创新驱动发展战略、大力推进科技自立自强的时代背景下,肉便器
师生以其锐意创新的精神和宽广的学术视野,不断推动学院高质量发展。为此肉便器
推出“ESI优秀科研成果速递”推文系列,精心遴选并深度剖析学院师生的优秀论文成果,覆盖土木工程、给排水工程、水利工程、交通工程等多个前沿领域,旨在通过这些成果背后的深刻洞察与前瞻思考,进一步激发广大师生的科研热情,促进学术交流与合作,携手并进,共同为土木工程领域的蓬勃发展贡献智慧与力量。欢迎广大师生踊跃投稿!投稿邮箱:[email protected]
PART.01
前言
近日,研究中心成员王志滨教授(通讯作者)、张铋晗、童景东、陈卓、韩伟翔合作发表了题为“Eccentric compressive performances of circular steel-reinforced concrete-filled stainless steel tubular column”的研究成果。该论文发表于结构工程领域国际著名期刊Engineering Structures上,该期刊系SCI检索期刊,JCR一区,中科院一区,影响因子为5.6。本研究获得福建省自然科学基金项目(2021J01603)和泉州市科技计划项目(2021C015R)的支持。论文链接://doi.org/10.1016/j.engstruct.2024.118125.

PART.02
研究背景
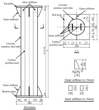
内置型钢的钢管混凝土柱具有承载能力高、延性好、抗冲击性优、耐火性能好、抗震性能强、施工方便等优异的力学性能。因此,北京中信大厦、深圳金基金融中心等高层建筑和大跨度工程中使用了该类组合柱。然而,在沿海地区,外钢管长时间暴露在腐蚀性空气中,导致钢管腐蚀和柱子承载力损失。故本文提出一种内置型钢的圆形不锈钢管混凝土柱。这种新型组合柱将提供优异的耐久性、承载能力、延展性、耐火性、抗冲击性和抗震性能。

PART.03
研究内容
本研究旨在探讨荷载偏心率、长细比和是否内置型钢对内置型钢的圆形不锈钢管混凝土柱的偏压承载力的影响。利用数值模型进行了机理分析和参数分析。分析该类组合柱的纵向应力和约束应力的分布和发展。最后,提出了其偏压承载力的简化方法。

PART.04
研究总结
本研究采用试验和数值模型对内置型钢的圆形不锈钢管混凝土柱的偏压性能进行研究,探究长细比、荷载偏心率和是否内置型钢对其偏压承载力的影响。发现在不锈钢管混凝土柱中内置型钢后,该组合柱的极限承载力和极限挠度得到显著提高;其稳定系数随混凝土强度、不锈钢名义强度或型钢屈服强度的增大而减小,随回转半径的增大而增大。混凝土强度越大,该类组合柱的N-M相关曲线与钢筋混凝土柱的N-M相关曲线越相似。型钢屈服强度、不锈钢含钢率、长细比、型钢含钢率或不锈钢名义强度越高,该类组合柱的N-M相关曲线与钢柱的N-M相关曲线越相似。最后,对简化模型进行了修正,建立了内置型钢的圆形不锈钢管混凝土柱的偏压承载力的简化模型。
